本安型隔爆跑偏開關BZX-220/3用途

【詳細說明】
本安型隔爆跑偏開關BZX-220/3說明
本安型隔爆跑偏開關BZX-220/3用途
適用于煤礦井下有瓦斯、煤塵等性氣體環境中,作膠帶輸送機膠帶跑偏檢測保護。也可用于地面、礦山、選煤廠、水泥廠、電廠、港口等膠帶輸送機配套。該開關還可以作隔爆型礦用旋轉式限位開關或行程開關使用。
技術參數
l、隔爆型式:礦用隔爆型(雙隔爆結構,微動開關為隔爆型),ExI。
2、額定電壓:AC380V,C250V。
3、額定電流:(10A)。
4、操作式:機械擺動式。
5、zui大擺動角度:+70?。
6、觸點動作時軸輥擺動角度:&plun;30?。
7、信號輸出:無電位觸點,一常開、一常閉。
8、出線口數量:2個,允許電纜外徑φ6- 19mm。
設備描述
跑偏開關分別安裝于膠帶輸送機頭部與機尾部兩側的機架上。跑偏開關軸輥在正常狀態下(無跑偏時),軸輥與膠帶邊緣線正交(垂直),兩者間距離約在80 -120mm。當膠帶應偏載而發生偏移,當軸輥擺角度≥30?時,其內部微動開關動作,發出預警信號或切斷膠帶輸送機控制回路停機。當故障排除后,跑偏開關又恢復到正常狀態。
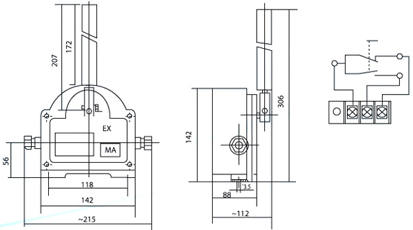
跑偏開關關安裝與接線圖

(圖)
兩級跑偏開關型號
HHTS-1、JSB-KPP-Z、JSB-KPP-S、
JPKJ-Z、JPKJ-S、JPK2-Z、JPK2-S、
HFKLT2-1、HFKPT1-N、JYB/KS-Ⅱ、
JYB/KS-Ⅰ、HFKLT2-N、LSKG-Ⅰ、
FPK-10-45、FPK-20-35、FPK-12-30、
FKLT2-Y、HFKLT2、
KPT1-20-35、KPT1-10-45、KPT1-12-30、
HFKPT1-20-35、HFKPT1-10-45,HFKPT1、
JM-KPT1-10-45、JM-KPT1-12-30、HR-KPT1-10-45、
HR-KPT1-12-30、HR-KPT1-20-35、FPXG-A
山東卓信電氣有限公司是一家主要從事生產接近開關、光電開關、霍爾元件、兩級跑偏開關、雙向拉繩開關、速度監測器、皮帶打滑開關、阻旋料位、皮帶縱向撕裂開關、礦用磁性井筒開關、傾斜開關,溜槽堵塞、聲光警示器、限位開關、行程開關、電梯開關、電梯稱重傳感器,防爆電磁閥線圈、齒輪傳感器、速度傳感器、接近傳感器、光電傳感器、無觸點磁性開關、防爆磁性接近開關、皮帶輸送裝置控制柜,等工控電器,集研發、試制;生產的高新技術性企業,符合節能、環保、低耗的國家產業政策,以小型化、智能化、多功能化、系統化的行業發展方向,并以的產品質量和完善的售后服務贏得了國內客戶的認同并與多家企業建立了長期,合作關系。
公司通過了及,公司采取質量管理方法,輸送機在運行中,當皮帶跑偏且與開關立輥接觸時,立輥自轉,若跑偏量繼續加大,則擠壓立輥發生偏移。一級開關信號用于報警,如果將此信號與跑調整裝置相接,即可實現不停機狀態下的跑偏自動調整。二級兩級跑偏開關信號用于停機,將此信號接至控制線路中,即可實現重度跑偏狀態下的自動停機。當故障排除后,膠帶離開立輥正常運轉時,立輥可自動復位。,將質量控制在每一個零部件、每一道工序、每一個環節,以做出zui的產品,讓顧客使用zui節能、zui環保、zui符合現代化的智能能產品。并且代理經銷進口同類電器產品:進口電器:、P F/、、、、、、、傳感器、、 、 ,、等知名品牌。
山東卓信電氣有限公司主要生產氣動元件、礦用電器、接近開關、光電開關、霍爾傳感器、磁性開關、速度傳感器、齒輪傳感器、兩級跑偏開關、雙向拉繩開關、打滑開關、皮帶打滑檢測裝置、料位監測器、速度、欠速開關、堆煤開關、煤流開關、傾斜開關、撕裂開關、皮帶輸送裝置控制柜、聲光警示器等工控電器,集開發、制造、銷售與一體。 堅持以&lquo;科技求發展,以質量求生存&rquo;為方針目標,以&lquo;服務只有起點,使用與安裝:防偏開關可固定在輸送機縱梁頂部或底部,動作桿距皮帶邊緣約25mm。通常安裝在皮帶兩側距頭部或尾部0.3-2米的地方。當皮帶跑偏時,迫使動作桿偏離,觸動報警開關。兩級跑偏開關如果繼續偏離,觸動別一組開關,輸送機就會保護性停機。,滿意沒有終點&rquo;為原則,以&lquo;誠實,守信&rquo;作為與客戶合作恪守的商業標準,以&lquo;開拓,,求實,創新&rquo;為企業精神,不斷推進企業的創新,以強大的技術和實力服務于電氣自動化,本系列跑偏開關具有兩級動作功能。一級動作用于報警,二級動作用于自動停機。膠帶機在運行中,當膠帶跑偏且與本開關立輥接觸時,立輥自轉,若跑偏量繼續加大,則擠壓立輥發生偏移。 當立輥偏轉角度超過12°時,一級開關動作,輸出(報警信號)。 當立輥偏轉角度超過30°時,二級開關動作,輸出(停機信號)。 一級開關信號用于報警,如果將此信號與跑調整裝置相接,即可實現不停機狀態下的跑偏自動調整。 二級開關信號用于停機,將此信號接至控制線路中,即可實現重度跑偏狀態下的自動停機。 當故障排除后,膠帶離開立輥正常運轉時,立輥可自動復位。 兩級跑偏開關為了適應戶外條件下長期使用,本產品均采用整體密封,內部金屬零件進行鍍鋅純化處理,外部零件除殼體外均做多層光亮鍍鉻,殼體為鑄鋁制造,表面采用靜電噴涂技術處理,適宜在惡劣環境下使用。 兩級跑偏開關采用鋁合金精密壓鑄殼體、強度高、重量輕; 外殼防護等級達IP65, 密封性好,防水、防塵,可在惡劣環境中長期工作; 觸點容量大、動作靈敏、可靠,全力以赴追求。 主要客戶群體: 機械設備、電氣自動化、礦山、電廠、鋼廠、水泥廠、設備廠、機械廠
Copyright © 山東卓信機械有限公司 版權所有 魯ICP備12019670號
全國服務電話:0537-2839666 傳真:0537-2228358 百度地圖 打滑開關
公司地址:山東省濟寧高新經濟技術開發區 音叉開關