防爆打滑開關 發布時間:2019-09-09 已獲點擊:34 詳細說明 打滑開關SFSJ-C山東卓信 速度打滑開關SFSJ-C用于" />
產品型號:SFSJ-C
打滑開關SFSJ-C山東卓信
速度打滑開關SFSJ-C用于對輸送機帶速進行檢測的新型裝置,對帶速進行實時檢測,已廣泛應用于煤礦行業、電力行業、糧食等行業的輸送系統中膠帶上,工作原理:DH系列非接觸打滑開關是通過檢測其探頭處電容的周期性變化工作的。如果被傳動軸、輪的端面或圓周面存在“不平整處",只要將打滑開關探頭對著有不平整處的部位安裝即可;如果找不到“不平整處"(軸、輪的端面平整且圓周面均勻光滑),只需在軸、輪的檢測處人為制造“不平整點"(在被檢測的面上加貼一小塊薄金屬片)即可。當電動機轉動時,通過轉動裝置驅使被傳動軸、輪轉動,打滑開關檢測到探頭電容周期變化時保持閉合狀態。當設備發生卡轉、堵轉、皮帶打滑、傳動帶脫落等故障時,被傳動軸將慢轉或停轉,打滑開關檢測到探頭電容的變化周期明顯變長,此周期如超過正常變化周期的兩倍之多,打滑開關將由閉合狀態轉為斷開。打滑開關如按“設備保護接線參考圖"接線時,可用來保護設備;如按“檢測轉動/停轉接線參考圖"接線時,可用來檢測“轉動"。,為膠帶機的安全運行提供了可靠的檢測手段。

結構特性
1、本機由觸輪、脈沖盤、電子脈沖開關、殼體等組成,觸輪采用鑄鐵制造,打滑開關是一種經濟、可靠性強、對軸轉速及其他旋轉裝置簡單通用的監測裝置,當檢測到目前轉速信號低于或高于正常轉速范圍,開關輸出一組開關信號,以供報警或停機。打滑開關無運動部件、無磨損、安全壽命長,一體化結構,集中的控制裝置,設定或故障檢修簡單。外殼彩用防水防塵的設計兩螺固定殼體,可直接安裝在惡劣環境中使用。面板操作說明打滑開關是氣動元件、礦用電器、接近開關、光電開關、霍爾傳感器、磁性開關、速度傳感器、齒輪傳感器、兩級跑偏開關、雙向拉繩開關、打滑開關、皮帶打滑檢測裝置、料位監測器、速度檢測器、打滑開關、堆煤開關、煤流開關、傾斜開關、撕裂開關、皮帶輸送裝置控制柜、聲光報警器等工控電器,集開發、制造、銷售與一體。,表面銑槽有耐磨打滑作用,殼體采用鋁鑄造,聯接處配有密封圈,打滑開關控測指示器:當速度范圍在設定范圍內時,繼電器輸出,led發亮有助與檢測傳感器或檢查連接故障。由點亮變熄滅的位置,在順時針方向旋轉電位器1圖(打滑率)即可。此電位器位置為脈沖信號設置值,當天關采集到脈沖信號值低于該設置值后,打滑開關輸出開關信號報警。可根據實際使用要求增加打滑率圈數以達到檢測重度打滑狀誠。,即使本機減輕重量與較好防水性能。
2、本機內開關采用常閉型,打滑開關是一種經濟、可靠性強、對軸轉速及其他旋轉裝置簡單通用的監測裝置,當檢測到目前轉速信號低于或高于正常轉速范圍,開關輸出一組開關信號,以供報警或停機。打滑開關無運動部件、無磨損、安全壽命長,一體化結構,集中的控制裝置,設定或故障檢修簡單。外殼彩用防水防塵的設計兩螺固定殼體,可直接安裝在惡劣環境中使用。面板操作說明打滑開關是氣動元件、礦用電器、接近開關、光電開關、霍爾傳感器、磁性開關、速度傳感器、齒輪傳感器、兩級跑偏開關、雙向拉繩開關、打滑開關、皮帶打滑檢測裝置、料位監測器、速度檢測器、打滑開關、堆煤開關、煤流開關、傾斜開關、撕裂開關、皮帶輸送裝置控制柜、聲光報警器等工控電器,集開發、制造、銷售與一體。,若帶速低于正常速度80%即可跳閘或停機。
打滑開關SFSJ-C山東卓信現貨供應
外形尺寸

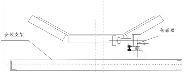
安裝示意圖

山東卓信其它打滑開關型號
SMS-PXK-BI、SMS-BI、XLDH-F-I、XLDH-F-II
XLDH-F-III、YHSJ-J、JDK-1、HQSD-A、HQSD-B
YHSJ-I、YHSJ-II、SMS-T3、JYB/RDC-C、XLDH-I
XLDH-II、XLDH-III、ZGDH-III 、XLDH-F-A、XLDH-F-S
XLDH-F-HI、DHJY-II、KBJ-220Y、SFSJ-C
Copyright © 山東卓信機械有限公司 版權所有 魯ICP備12019670號
全國服務電話:0537-2839666 傳真:0537-2228358 百度地圖 打滑開關
公司地址:山東省濟寧高新經濟技術開發區 音叉開關